thanos-pal-I3S-Oha_5k4-unsplash
Predané

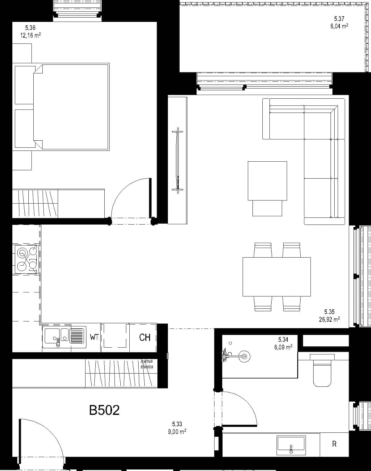
Byt: B502

5. Podlažie – Budova B / 2 izbový

Celková výmera

63,40 m2

Zádverie

9,00 m2

Kúpeľňa + WC

6,09 m2

Spálňa

12,16 m2

Obývacia izba + kuchyňa

26,92 m2

Lodžia

6,04 m2

Pivnica

3,19 m2

Cena

Na vyžiadanie

Mám záujem
Predané
B502

B502

PODOBNÉ VOĽNÉ BYTY

cta-formular-picture
https://vezebrezovec.sk/ochrana-sukromia/

    Záujem o byt:

    Ochrana osobných údajov

    Správa odoslaná

    Ďakujeme za záujem, čoskoro sa Vám ozveme.